Баня брус 1
Описание
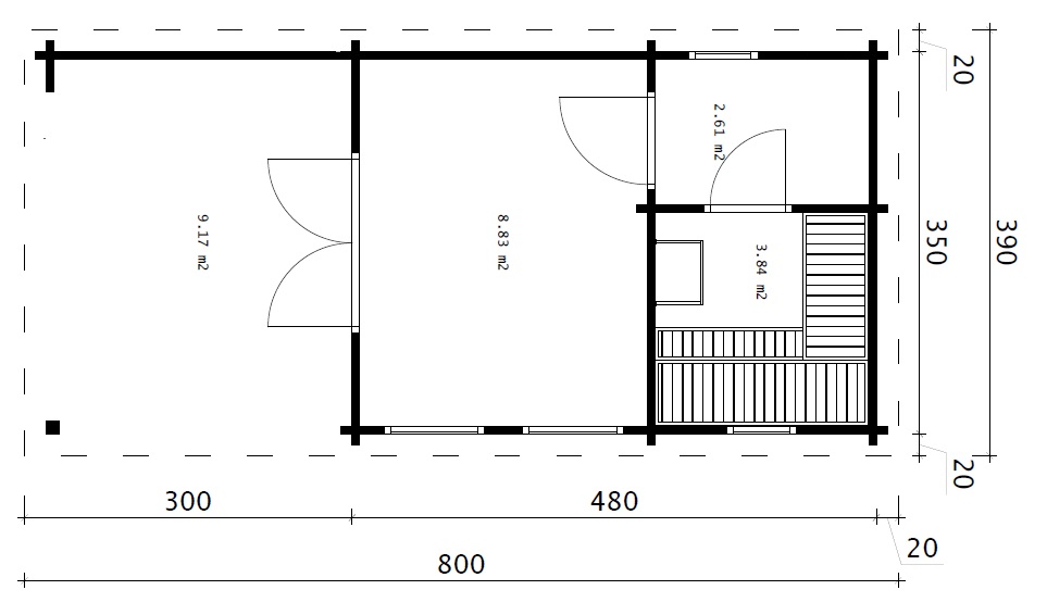
Баня площадью 15 м² включает в себя просторную гостиную, веранду 3х3 м, туалет и большую сауну. Эта бревенчатая сауна, которую можно разместить в саду, идеально подходит благодаря своей универсальности. Большое помещение можно использовать для вечерних посиделок с друзьями, в качестве комнаты для хобби, гостевой комнаты или даже домашнего тренажерного зала, а веранда идеально подходит, например, для обедов на свежем воздухе. Сауна-кабина имеет стены из бруса толщиной 70 мм, высококачественные стеклопакеты и окна, а также все необходимое для самой сауны: решетки для пола, скамейки, подголовники, защитные решетки для печи, стеклянную дверь толщиной 8 мм и комплект теплоизоляции, а также потолочные панели. Все деревянные детали изготовлены из высококачественной древесины
| Внешние размеры: | 3,2 x 8 м |
| Высота стены: | 2,3 м |
| Высота кисти: | 2,7 м |
| Толщина стенки: | 70 мм |
| Внутренняя площадь: | 15 м² |
| Крыша: | Примерно 29 м², 18 мм |
| Пол: | 27 мм, терраса 27 мм |
| Двери: | 1 дверь 150 x 196 см, дверь для сауны 69 x 194 см, 1 межкомнатная дверь 80 x 198 см |
| Окна: | 2 окна (проем) 80 x 114 см, 2 окна 51 x 51 см |
| Материал: | Скандинавская ель, необработанная |
| Дополнительная информация: | Пропитанные опорные балки, рейки для защиты от непогоды, монтажные инструменты, стекло для окон и дверей, цилиндрический замок, руководство по продукции, 5-летняя гарантия. |



